Construction d’un vestiaire en pisé (69)
MOA : TERRIO
Architecte : astrolab.
Bureau d’études : astrolab.
Missions : BASE | EXE+PAC
Programme : Equipement en ERT
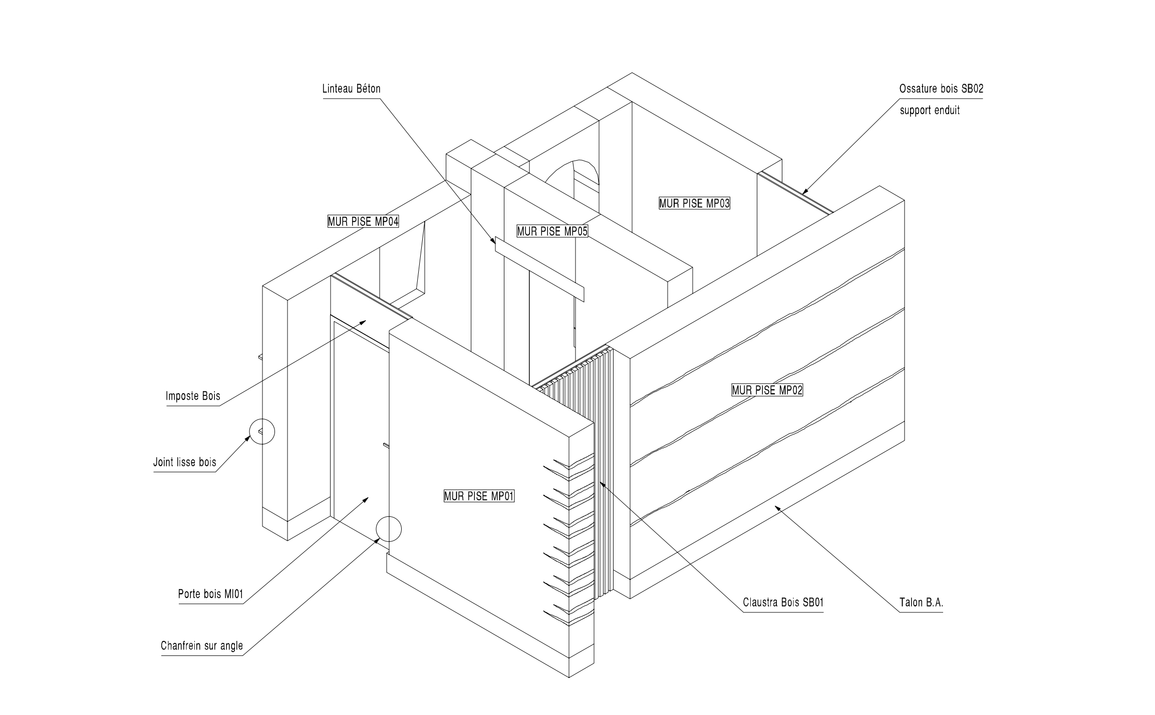
Conception d’un vestiaire en pisé et bois pour l’entreprise Terrio, de l’esquisse aux plans PAC, comprenant une douche et des espaces permettant à six personnes de se changer et de ranger leurs affaires.
Ce local a pour vocation de montrer le savoir-faire de Terrio en matière de blocs de pisé, avec des finitions variées, telles que des chanfreins, des couches de chaux, et l’intégration de bois. La toiture, composée de panneaux de contreplaqué, se détache des murs, créant ainsi un lanterneau qui met en valeur toute la texture du pisé. Les blocs ont déjà été fabriqués, mais la mise en œuvre reste à venir.









